autocad2022完整破解版下载|Autodesk AutoCAD 2022破解版 32位/64位 V30.1.51 最新免费版下载
AutoCAD2022完整破解版是一款功能强大的专业计算机辅助设计软件,能够帮助用户轻松设计辅助各种工程图纸,有效的提高制图水平和出图效率。软件已经成功破解,去除了注册码验证功能,用户可以免费激活注册,知识兔使用软件的全部功能。全新的autocad2021分享了文本设定、尺寸标注、视觉样式、模型文档、参照和导入模型、数据链接、参数化约束等多样的功能,涉及协作、二维草图、三维建模等方面,用户可以轻松创建单行或多行文字,知识兔还能把光标放在选定好的对象上以便更好的进行创建工作,更有三维查看和导航工具用来展示你的优秀设计。
最新发布的autocad 2021与前一个版本新增了多项好用的功能、改进以及命令,包含潮流的暗色主题、自动了解图纸历史、增强版块调色板、集成AutoCAD Web App和Google Drive等功能,你可以通过新的主题体验扁平的用户界面,享受更加清晰的视 界,或是应用新的绘图历史记录功能来深入了解绘图的演变过程。值得一提的是新版本支持win10、win8和win7系统,不像Adobe旗下的新软件那样不支持低版本的操作系统,这点对于低版本操作系统的小伙伴来说十分友好。

【软件功能】
图形历史记录,比较图形的过去和当前版本,并查看您的工作演变情况。
视频:查看对作为外部参照附着的图形文件所做的更改
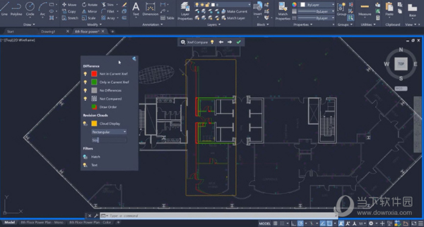
外部参照比较,比较两个版本的 DWG,知识兔包括外部参照 (Xref)。
视频:了解在 AutoCAD 2021 中如何增强“块”选项板
“块”选项板,知识兔从桌面上的 AutoCAD 或 AutoCAD Web 应用程序中查看和访问块内容。
视频:了解如何通过移动鼠标来显示尺寸、距离和角度
快速测量,只需悬停鼠标即可显示图形中附近的所有测量值。
图形上叠加了列出在云中为 AutoCAD 存储的 DWG 的对话框的桌面视图
云存储连接,利用 Autodesk 云和一流云存储服务分享商的服务,可在 AutoCAD 中访问任何 DWG™ 文件。
随时随地使用 AutoCAD,通过使用 AutoCAD Web 应用程序的浏览器或通过 AutoCAD 移动应用程序创建、编辑和查看 CAD 图形。

【软件特色】
1、充满了为你的工作方式和自动化而构建的新功能,可在此过程中提高生产率。包含专业工具集的AutoCAD,2021版中可以访问七个特定于行业的工具集,例如“体系结构”和“电气”,知识兔可以自动执行任务并为你节省数小时甚至数天的宝贵时间。
2、有很多经验可供使用。新的“绘图历史记录”功能可以改变你的工作流程,使你可以深入了解绘图的演变。现在,你可以将流行的DWG比较功能用于连接到图纸的外部参考(Xref)。图形性能进一步增强。而且知识兔你可以随时随地保持与块内容的连接。
3、对手势的支持已得到增强,可获得更好的触摸体验。
4、性能改进:通过部件、零件、工程图和 AnyCAD 的性能改进,继续处理更大、更复杂的设计。
5、Inventor 体验:使用引进了新特性面板的全新用户界面,简化工作流,减少单击次数并节省时间。
6、设计增强功能:针对草图绘制和零件建模中的核心设计命令引进了新功能。

【软件亮点】
1、潮流的暗色主题
继 Mac、Windows、Chrome 推出或即将推出暗色主题(dark theme)后,AutoCAD 2021 也带来了全新的暗色主题,它有着现代的深蓝色界面、扁平的外观、改进的对比度和优化的图标,分享更柔和的视觉和更清晰的视 界
2、分秒必争
保存你的工作只需 0.5 秒——比上一代整整快了 1 秒。此外,本体软件在固态硬盘上的安装时间也大大缩短了 50%。
3、“快速测量”更快了
新的“快速测量”工具允许通过移动/悬停光标来动态显示对象的尺寸,距离和角度数据。
新块调色板(Blocks palette)
这是一项功能,知识兔可以通过 BLOCKSPALETTE 命令来激活。新块调色板可以提高查找和插入多个块的效率——包括当前的、最近使用的和其他的块,知识兔以及添加了重复放置选项以节省步骤。
4、更有条理的清理(Purge)
重新设计的清理工具有了更一目了然的选项,通过简单的选择,终于可以一次删除多个不需要的对象。还有“查找不可清除的项目”按钮以及“可能的原因”,知识兔以帮助了解无法清理某些项目的原因。
5、在一个窗口中比较图纸的修订
DWG Compare 功能已经得到增强,知识兔可以在不离开当前窗口的情况下比较图形的两个版本,并将所需的更改实时导入到当前图形中。
5、云存储应用程序集成
已经支持 Dropbox,OneDrive 和 Box 等多个云平台,这些选项在文件保存和打开的窗口中分享。这意味着你可以将图纸直接保存到云上并随时随地读取(AutoCAD Web 加持),有效提升协作效率。

【新功能】
1、跟踪
跟踪分享了一个安全空间,可用于在AutoCAD Web和移动应用程序中协作更改图形,而不必担心更改现有图形。跟踪如同一张覆盖在图形上的虚拟协作跟踪图纸,方便协作者直接在图形中添加反馈。
在Web和移动应用程序中创建跟踪,然后知识兔将图形发送或共享给协作者,知识兔以便他们可以查看跟踪及其内容。
功能略有不同,具体取决于所使用的应用程序版本。虽然可以在桌面、Web或移动应用程序中查看跟踪,但在使用Web和移动设备时只能创建或编辑跟踪。

2、计数
快速、准确地计数图形中对象的实例。知识兔可以将包含计数数据的表格插入到当前图形中。
“计数”功能分享了计数视觉结果和对计数条件的进一步控制。在模型空间中指定单个块或对象以计数其实例。还可以使用“计数”选项板来显示和管理当前图形中计数的块。
当处于活动计数中时,“计数”工具栏显示在绘图区域的顶部。“计数”工具栏包含对象和问题的数量,知识兔以及其他用于管理计数的对象的控件。
“计数详细信息”图标会根据当前计数是否包含错误而变化。单击或以打开“计数”选项板并查看更多详细信息。
显示计数条件,知识兔包括计数的对象的常规特性以及用户定义的任何块属性和参数。
显示计数条件,知识兔包括常规特性、用户定义的块属性和参数以及计数的对象的问题报告。问题可以包括重叠、分解或重命名的对象。
注:计数列表包含其他块中嵌套的块。

3、浮动图形窗口
浮动图形窗口功能的一些优势包括:
可以同时显示多个图形文件,而无需在选项卡之间切换。
可以将一个或多个图形文件移动到另一个监视器上。

4、共享当前图形
共享指向当前图形副本的链接,知识兔以在AutoCAD Web应用程序中查看或编辑。包括所有相关的DWG外部参照和图像。
“共享”的工作方式类似于AutoCAD桌面中的ETRANSMIT。共享文件包括所有相关从属文件,例如外部参照文件和字体文件。任何有该链接的用户都可以在AutoCAD Web应用程序中访问该图形。该链接将于其创建后的七天之后过期。知识兔可以为收件人选择两个权限级别:“仅查看”和“编辑和保存副本”。

5、推送到Autodesk Docs(固定期限的使用许可优势)
借助“推送到Autodesk Docs”,团队可以现场查看数字PDF以进行参照。“推送到Autodesk Docs”可用于将AutoCAD图形作为PDF上载到Autodesk Docs中的特定项目。
通过将图形布局作为PDF推送到Autodesk Docs,即可现场协作。从多个图形中选择布局,然后知识兔将它们作为PDF上载到Autodesk Docs中的选定项目文件夹。

6、“开始”选项卡重新设计
“开始”选项卡已经过重新设计,可为Autodesk产品分享一致的欢迎体验。
“开始”选项卡会亮显最常见的需求,例如:
继续工作-从上次离开的位置继续工作。
开始新工作-从空白状态、样板内容或已知 位置的现有内容开始新工作。
了解-浏览产品、学习新技能或提高现有技能、发现产品中的更改内容或接收相关通知。
参与-参与客户社区、分享反馈或者联系客户帮助或支持。
Autodesk Docs:
Autodesk Docs分享了一种打开文件并将其保存到连接的驱动器的方法。在AutoCAD Beta版期间,知识兔可以尝试使用的一种驱动器类型是BIM360。将需要安装Desktop Connector,才能在Autodesk Docs上访问连接的驱动器。
Desktop Connector:
Desktop Connector是将Autodesk数据管理源(或数据源)与您的桌面文件夹和文件结构相集成以简化文件管理的桌面服务。
数据源中的文件将复制到连接的驱动器。知识兔可以通过连接的驱动器在数据源中管理文件,就像在计算机上管理任何其他文件夹一样。在连接的驱动器中所做的更改将自动上传到数据源。
在“开始”选项卡上单击“如何安装Desktop Connector”,然后知识兔按照以下说明操作来下载并安装Desktop Connector。br />测试项目访问:
将需要请求访问适用于AutoCAD Beta版的BIM360测试项目。在获得访问权限后,当在“开始”选项卡上单击Autodesk Docs即会显示该测试项目。

7、三维图形技术预览
此版本包含为AutoCAD开发的全新跨平台三维图形系统的技术预览,知识兔以便利用所有功能强大的现代GPU和多核CPU来为比以前版本更大的图形分享流畅的导航体验。
默认情况下,该技术预览处于禁用状态。启用后,现代图形系统将采用“着色”视觉样式接管视口。现代图形系统最终可能会取代现有三维图形系统。在完成制作该产品之前,我们希望您能试用它,并向我们分享反馈

8、安装程序br />2022版产品分享了更快、更可靠的全新安装和展开体验。安装产品时,选项较少,因此可以更快地启动和运行。要创建更加个性化的安装或展开,请使用Autodesk Account中的“自定义安装”工作流。这样,便可以完全控制所需的选项,而无需先下载产品。使用“自定义安装”,知识兔可以在单个安装中包含多个产品,其中包含所有选项、扩展和插件

【新特性】
【触摸增强功能】
autocad2021对手势的支持已得到增强,可获得更好的触摸体验。通过启用触摸的屏幕或界面,现在可以执行以下任一操作:
(1)平移和缩放:当没有命令在执行时,知识兔使用一个或两个手指拖动即可平移。当命令正在执行时,知识兔使用两个手指进行绘制以进行平移:使用两个手指收拢或张开即可缩放。
(2)选择:知识兔点击某个对象即可将其选中。当某个执行中的命令需要您选择对象时,知识兔可以拖动一个手指来创建窗口或交叉选择。
(3)ESC:使用一个手指知识兔双击可结束命令或清除选择。
当某个命令正在执行时,请在提示输入点时知识兔点击位置。为了更精确地控制对象捕捉,请在对象上拖动手指,直到看到所需的对象捕捉,然后知识兔释放手指。知识兔可以在某个命令的中途使用两个手指来进行平移和缩放。
【修订云线增强功能】
autocad2021的修订云线现在包括其近似弧弦长(即每个圆弧段端点之间的距离)的单个值。
第一次在图形中创建修订云线时,圆弧的尺寸取决于当前视图的对角线长度的百分比。这确保修订云线从合理尺寸开始。
可以在“特性”选项板中通过其快捷菜单或使用新的 REVCLOUDPROPERTIES 命令更改选定修订云线对象的弧弦长。
可以使用 REVCLOUDARCVARIANCE 系统变量来控制圆弧的弦长可以具有更大变化还是更均匀。将此系统变量设置为“OFF”可恢复之前创建修订云线的方式,而将其保留为“ON”将导致偏向手绘的外观。
选择修订云线对象后,“特性”选项板现在将修订云线显示为对象类型(而不是多段线)。修订云线基本上仍然是多段线,但它们具有附加圆弧特性和用于在夹点样式之间切换的选项(REVCLOUDGRIPS 系统变量)。

1、新命令
REVCLOUDPROPERTIES – 控制选定修订云线中圆弧的近似弦长。
2、已更改的命令
REVCLOUD – 创建或修改修订云线。
3、新系统变量
REVCLOUDARCVARIANCE – 控制是使用不同弦长还是大致均匀弦长创建修订云线圆弧。
【简化的“修剪和延伸”选项】
1、默认情况下,软件默认的“快速”模式会选择所有潜在边界,而不必先为“修剪”和“延伸”命令选择边界。其他方面影响包括:
(1)启动 TRIM 或 EXTEND 命令后,只需选择要修剪或延伸的对象。
(2)用于选择要修剪或延伸的线段的默认选项为单独选择、徒手选择和两点栏选。
(3)通过按住鼠标左键并在一个或多个对象上拖动光标,开始徒手选择。
(4)通过单击定义穿过对象的线段的两个点,开始栏选。
(5)相反,将删除无法修剪的选定对象。

2、已更改的命令
EXTEND – 延伸对象以与其他对象的边相接。
TRIM – 修剪对象以与其他对象的边相接。
3、新系统变量
TRIMEDGES – 控制是将“快速”模式下修剪和延伸到图案填充的操作限于图案填充的边缘,还是包括填充图案内的对象。
TRIMEXTENDMODE – 控制 TRIM 和 EXTEND 命令是否使用简化的输入。
【打断单点处对象】
使用新的 BREAKATPOINT 命令,现在可以通过按 Enter 键重复功能区上的“在点处打断”工具。此命令在指定点处将直线、圆弧或开放多段线直接分割为两个对象。

1、新命令
BREAKATPOINT – 在指定点处将选定对象打断为两个对象。
【测量几何图形选项:快速测量】
在图形的平面图中,MEASUREGEOM 命令的“快速”选项现在支持测量由几何对象包围的空间内的面积和周长。
在闭合区域内单击会以绿色亮显,并在“命令”窗口和动态工具提示中以当前单位格式显示计算的值。如果知识兔按住 Shift 键并单击以选择多个区域,将计算累计面积和周长。还包括封闭孤岛的周长,如下图所示。

按住 Shift 键并单击也可取消选择区域。要清除选定区域,只需将鼠标移动一小段距离即可。
1、功能区访问
cad2021“常用”选项卡 > “工具”面板 > “测量”/“快速”。

2、已更改的命令
MEASUREGEOM – 添加了用于实时测量标注、距离、角度和面积的“快速”选项。
【图形历史支持(固定期限的使用许可优势)】
1、如果知识兔将图形文件保存到 OneDrive、Dropbox 或 Box 帐户,则在您工作时会创建这些图形文件的其他版本,知识兔从而创建版本历史。早期版本将列在新的“图形历史记录”选项板中,知识兔以便可以将它们与图形的当前版本进行比较。
注: 您选择的云存储分享商会设置存储的版本数,并管理其到期日期。
登录 Autodesk Account 后,在首次访问保存在 Dropbox、Box 或 Microsoft OneDrive 帐户中的图形时,将会显示一条通知。例如,如果知识兔之前已将某个图形保存到 Dropbox 帐户,则会显示以下通知:

登录后,“图形历史”选项板将显示该图形的任何早期版本的列表。
(1)在“图形历史”选项板中,知识兔可以过滤按日期范围、用户名或版本之间指定的最小时间增量列出的版本。

(2)可以使用“图形比较”功能将图形的当前版本与图形历史记录中的任何早期版本进行比较。如果知识兔对图形拥有云访问权限的几个用户之一进行了更改,则会显示一条通知,其中包括进行更改的用户名以及允许您比较更改的链接。

“比较”控件可打开“图形比较”功能,知识兔以识别版本之间的几何差异或文本差异。
2、功能区访问
“视图”选项卡 > “历史记录”面板 > “DWG 历史记录”。

3、新命令
DWGHISTORY – 打开“图形历史”选项板,其中显示由受支持云存储分享商维护的当前图形的版本历史记录。
DWGHISTORYCLOSE – 关闭“图形历史”选项板。
4、新系统变量
DWGHISTORYSTATE – 报告“图形历史”选项板是处于打开状态还是关闭状态。
【系统要求】
2020版本开始,只有64位版,不再发布32位版本
2019-2021 支持64位 Windows 7 (KB4019990) , Windows 10 v1803 或更高版
2015-2019 支持Windows 7 或更高版,2004-2014 支持Windows XP 或更高版

【全新功能】
跟踪
跟踪分享了一个安全空间,可用于在 AutoCAD Web 和移动应用程序中协作更改图形,而不必担心更改现有图形。跟踪如同一张覆盖在图形上的虚拟协作跟踪图纸,方便协作者直接在图形中添加反馈。
计数
快速、准确地计数图形中对象的实例。知识兔可以将包含计数数据的表格插入到当前图形中。
浮动图形窗口
现在,知识兔可以将某个图形文件选项卡拖离 AutoCAD 应用程序窗口,知识兔从而创建一个浮动窗口。
共享当前图形
共享指向当前图形副本的链接,知识兔以在 AutoCAD Web 应用程序中查看或编辑。包括所有相关的 DWG 外部参照和图像。

推送到 Autodesk Docs(固定期限的使用许可优势)
借助“推送到 Autodesk Docs”,团队可以现场查看数字 PDF 以进行参照。“推送到 Autodesk Docs”可用于将 AutoCAD 图形作为 PDF 上载到 Autodesk Docs 中的特定项目。
“开始”选项卡重新设计
“开始”选项卡已经过重新设计,可为 Autodesk 产品分享一致的欢迎体验。
三维图形技术预览
此版本包含为 AutoCAD 开发的全新跨平台三维图形系统的技术预览,知识兔以便利用所有功能强大的现代 GPU 和多核 CPU 来为比以前版本更大的图形分享流畅的导航体验。
安装程序
2022 版产品分享了更快、更可靠的全新安装和展开体验。
其他增强功能
性能改进:现在,后台发布和图案填充边界检测将充分利用多核处理器。
图形改进:现在,Microsoft DirectX 12 支持用于二维和三维视觉样式。

【破解说明】
先安装原版,然后知识兔关闭
1、运行破解补丁AutoCAD2022-2021Patch.exe(注:杀毒软件会报毒品,请添加信任)

2、然后知识兔点击应用即可,重新打开CAD2022就完美激活了!
下载仅供下载体验和测试学习,不得商用和正当使用。

![PICS3D 2020破解版[免加密]_Crosslight PICS3D 2020(含破解补丁)](/d/p156/2-220420222641552.jpg)






